Office coworking
Style: modern

This project is built around the concept of joy, freshness, and comfort, with a strong emphasis on clarity of mind and inspiration. At its core, it seeks to establish a vibrant community of designers, manufacturers, and creators in the fields of finishing materials, furniture, and lighting. By fostering collaboration and dialogue, the community becomes a hub of creativity and innovation.
Promotion of coworking space will span across both digital and offline channels, leveraging Instagram, Facebook, TikTok, events, lectures, magazines, and outdoor advertising to build visibility and engagement. Through these platforms, the project will highlight new trends, showcase design solutions, and create meaningful touchpoints with audiences.


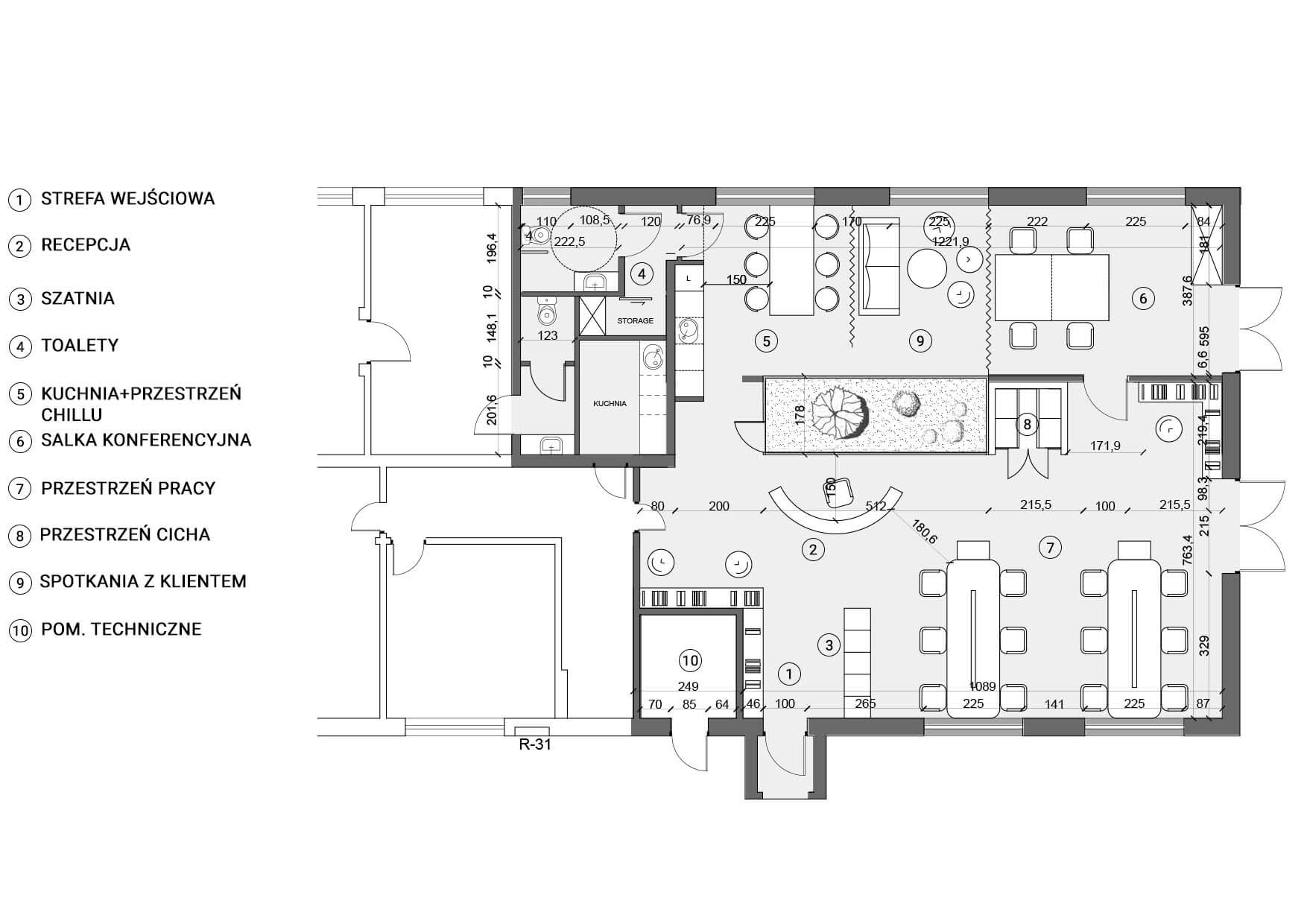
The project aims to create a functional and versatile space designed to meet the diverse needs of its users. It will feature a variety of rooms and zones, including offices, reading rooms, conference areas, and a dining space, ensuring comfort and practicality for both individual and group activities.
The layout emphasizes diversity of space, offering a balance between open, collaborative areas and more intimate, private zones for focused work. Special attention is given to acoustic insulation through the use of partition walls, mobile sound-absorbing panels, and individual work booths, ensuring that every user can find the right environment for concentration or collaboration.

The project is designed to provide a quiet, well-equipped, and thoughtfully designed environment that enhances both comfort and productivity. The interiors will be modern, ergonomic, and fully furnished, offering an atmosphere that is calm and not overly bright—supporting focus, creativity, and well-being.
Unlike working from home or remotely, this space will provide a clear advantage through professional equipment such as whiteboards, projectors, and other collaboration tools. Ergonomics are a priority: adjustable desks, comfortable chairs, proper task lighting, and accessible outlets at every workstation will ensure healthy and efficient work.





The project envisions a vibrant, inspiring, and versatile environment that merges joy, comfort, and functionality. With offices, reading and conference rooms, dining areas, prototyping workshops, and a materials library, it supports both focused work and collaboration.
Designed with ergonomics, soundproofing, and flexible seating, the space provides advantages beyond home offices, becoming a central city hub for innovation and community building.
